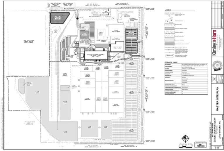
根據提交給該市的工廠總平面圖,Lucid公司的電動車工廠廠區占地面積有將近有200萬平方米。 但它將從占地近8萬平方米的第一個工廠建筑開始建設。

華人電動車廠商Lucid投資7億美元建廠 即將破土動工

圖/騰訊科技

在特斯拉的示范效應下,許多新創公司和“造車新勢力”涌入了電動車行業,其中包括美國硅谷的華人電動車企業“Lucid汽車公司”。據外媒最新消息,Lucid在過去的幾年里一直在等待亞利桑那州卡薩格蘭德的一家全新工廠破土動工,現在終于能夠啟動項目(總投資7億美元)。現在,國外科技媒體已經獲得了該工廠的第一張圖片。

據悉,本周,Lucid公司已經把工廠的規劃提交給了卡薩格蘭德市政府,隨后媒體獲得了這些資料。

華人電動車廠商Lucid投資7億美元建廠 即將破土動工

根據提交給該市的工廠總平面圖,Lucid公司的電動車工廠廠區占地面積有將近有200萬平方米。 但它將從占地近8萬平方米的第一個工廠建筑開始建設。

這座建筑并不像另外一家電動車企業法拉第未來(Faraday Future)曾經準備在內華達州拉斯維加斯外建造的工廠那樣“光鮮亮麗”(簡直像一個旅游景點),而是看起來更是一家急需現金的汽車初創公司的工廠,該公司正試圖在明年年底前讓第一款豪華電動轎車Lucid Air投產。

據國外媒體報道,Lucid公司并不擁用于工廠建設的土地;相反,加州皮納爾縣購買了大量的土地,并將租賃給這家電動汽車初創公司,這個縣最終的目標是把土地轉讓給Lucid公司。

皮納爾縣通過發行債券籌集了2994萬美元來購買土地,Lucid公司將每年支付180萬美元的土地租金,然后才有機會在五年內購買這片土地。

根據2018年末委托的第三方經濟分析,皮納爾縣和卡薩格蘭德市指望這座電動車工廠在頭五年提供3230個直接和間接建筑行業工作崗位。未來20年之內,該工廠預計將創造4800個直接和間接就業機會,為市縣兩級政府帶來3350萬美元的稅收,為當地學區帶來2220萬美元的稅收。

據當地媒體報道,卡薩格蘭德的經濟發展總監表示,他預計Lucid公司的電動車工廠將在今年年底前破土動工。該公司汽車營銷經理大衛·薩爾蓋羅表示,公司已經開始對土地進行分級,籌備施工,但拒絕透露更詳細的信息。

沙特支持

據報道,Lucid由美國加州的華人創辦,創始人分別是特斯拉公司前任電池研發主管謝家鵬和甲骨文公司前任中層溫世銘。

和特斯拉公司在早期發展階段時類似,Lucid公司目前暫時定位生產電動車豪車,起步售價高達6萬美元。

早期,特斯拉公司曾經制造電動跑車Roadster,后來開始自行設計和生產兩款豪華車Model X和Model S,在技術逐步成熟之后,特斯拉終于推出了大眾款車型Model 3,售價在四萬美元左右。

據國外媒體報道,中國科技行業人士賈躍亭曾經在在Lucid公司投資入股,但是后來遭遇財務困難時,賈躍亭已經變賣了這一股權。

不久前,Lucid獲得了一筆十分重要的投資。沙特阿拉伯的主權財富基金向這家公司投資了10億美元。沙特這家基金原先在馬斯克的特斯拉公司持有5%的股權,外界預計將會繼續向特斯拉公司追加投資、擴大持股比例,但是令人意外的是,沙特阿拉伯把巨額投資給了特斯拉的一家對手。

準備人才

Lucid目前正在準備汽車的量產和建廠工作。七月份,該公司還宣布,已聘請特斯拉公司前生產高管彼得·霍丁格(Peter Hochholdinger)擔任負責汽車制造的副總裁。

據悉,這名高管曾是特斯拉弗里蒙特工廠的生產副總裁,在特斯拉工作了三年之后,于今年年中離職。在特斯拉,他的任務是提高特斯拉豪華Model S轎車和Model X SUV的產量,并幫助建立一個Model 3轎車的成本效益生產計劃。

霍丁格也成為特斯拉高管流失潮中損失的另外一位得力干將。

[責任編輯:陳語]

免責聲明:本文僅代表作者個人觀點,與電池網無關。其原創性以及文中陳述文字和內容未經本網證實,對本文以及其中全部或者部分內容、文字的真實性、完整性、及時性,本站不作任何保證或承諾,請讀者僅作參考,并請自行核實相關內容。涉及資本市場或上市公司內容也不構成任何投資建議,投資者據此操作,風險自擔!

凡本網注明?“來源:XXX(非電池網)”的作品,凡屬媒體采訪本網或本網協調的專家、企業家等資源的稿件,轉載目的在于傳遞行業更多的信息或觀點,并不代表本網贊同其觀點和對其真實性負責。

如因作品內容、版權和其它問題需要同本網聯系的,請在一周內進行,以便我們及時處理、刪除。電話:400-6197-660-2?郵箱:119@itdcw.com

電池網微信
電動汽車
新能源車
造車新勢力