由浙江蓋亞新能源有限公司建設的新建儲能型大圓柱3GWh鋰(鈉)電池制造項目位于遂昌縣經濟開發區龍板山區塊,項目總用地面積64,831㎡。

電池網從浙江麗水遂昌縣人民政府獲悉,8月5日,“新建儲能型大圓柱3GWh鋰(鈉)電池制造項目”設計方案公示。
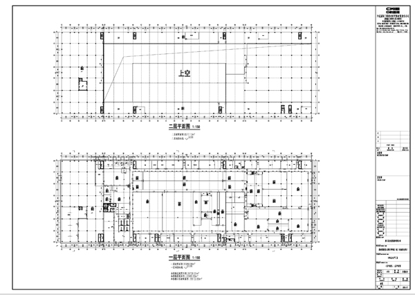
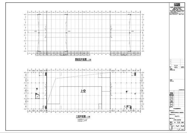
據了解,由浙江蓋亞新能源有限公司建設的新建儲能型大圓柱3GWh鋰(鈉)電池制造項目位于遂昌縣經濟開發區龍板山區塊,用地性質為工業用地。項目總用地面積64,831㎡,總建筑面積75,310.29㎡,總計容建筑面積135,713.63㎡,建構筑占地面積35,972.59㎡,建筑系數55.49%,容積率2.09,綠地率10.03%,主要建設廠房、綜合樓等。
現設計方案已通過相關部門聯合審查,依法予以公示。公示期自2024年8月5日至2024年8月15日。各位市民如有異議,請在公示期限內以書面形式提出反饋意見。公示期滿無異議,遂昌縣自然資源和規劃局將按規定辦理相關手續。
地址:妙高街道南街101號(郵編323300)
電話:0578-8510695 0578-8510685






電池網微信











